Обяви За нас Контакти
Продава 3-СТАЕН
град София, Малинова долина
215 550 €
421 579.16 лв.

(1 796 €, 3 512.67 лв./m2)
Цената е с включено ДДС
Коригирана в 16:47 на 7 ноември, 2025 год.
Обявата е посетена 58 пъти.
Площ:
120 m2
Етаж:
1-ви от 6
Строителство:
Тухла, Ще бъде въведен в експлоатация 2026 г.

Описание на имота:


ARCO REAL ESTATE предлага за продажба Тристаен в сграда в Ж.К. Малинова Долина до Климент Охридски.

Просторен тристаен апартамент в Малинова долина, в близост до Националната спортна академия (НСА)
Имотът се намира в един от най-предпочитаните и бързо развиващи се райони на София. Разположен в тиха и зелена част на квартала, апартаментът съчетава удобството на градския живот с усещане за спокойствие и комфорт. Отличната локация осигурява лесен достъп до градски транспорт, основни пътни артерии, магазини, спортни и развлекателни съоръжения.

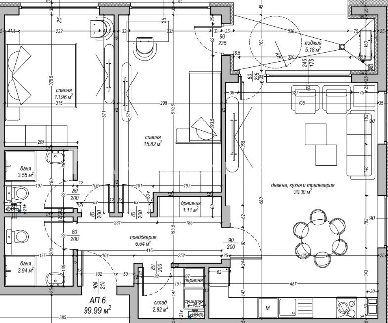
Предлагаме тристаен апартамент, намиращ се на 1ви етаж от 6 с площ от 119.75м2. Апартаментът е с чиста застроена площ 99.99м2 и има следното разпределение:
Дневна с кухненски бокс, 30.30м2
Спалня 13.96м2
Спалня 15.82
Баня с тоалетна 3.55
Баня с тоалетна 3.94
Складово помещение 2.82
входно антре 6.64м2

Етап на строителство- преди акт15
Акт 16 се очаква до края на 2026 като се предлага гъвкава схема на разплащане

ARCO REAL ESTATE е лицензиран кредитен посредник и оценител, предлагаме съдействие за ипотчено кредитиране
Водещ брокер на обявата: Вайс Сайфи
0878999555
Виж всички обяви в arcoimoti.bazar.bg или тук
Особености
Тухла
За контакт:
0878 999 555
Брокер:
Вайс Сайфи
0878 999 555
Офис: Иван Вазов, бул.Витоша 137
Още оферти от брокера: Продава | Дава под наем | Купува | Наема
Агенция:
АРКО РИЪЛ ЕСТЕЙТ
02 950 3888; Безплатен телефон: 0800 900 25
АРКО РИЪЛ ЕСТЕЙТ logo
Медал за прослужено време
В imot.bg от 2006 г.
arcoimoti.imot.bg
Адрес:
област София, гр. София, ул. 'Коста Лулчев' 58А
http://www.arcoreal.bg
ИЗПРАТИ ЗАПИТВАНЕ
ИЗПРАТИ ЗАПИТВАНЕТО

Продава 3-СТАЕН
град София, Малинова долина
Обява: 1c173744953379078

215 550 €
421 579.16 лв.
(1 796 €, 3 512.67 лв./m2)

Цената е с включено ДДС
ЗАПАЗИ ОБЯВАТА

Местоположение: град София, Малинова долина

Допълнителни данни за имотите в района и сравнение с други райони: Търсене в АРХИВ 2013 - 2025 г.











Добави/редактирай
вид имот и район
*Средните цени са определени чрез медиана стойност.